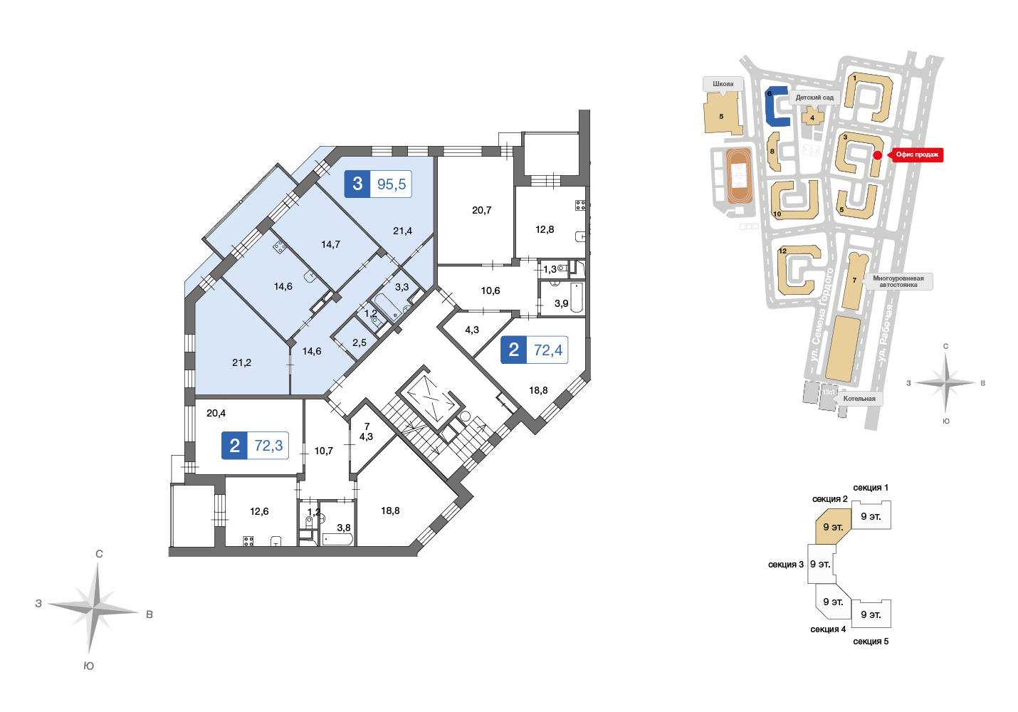
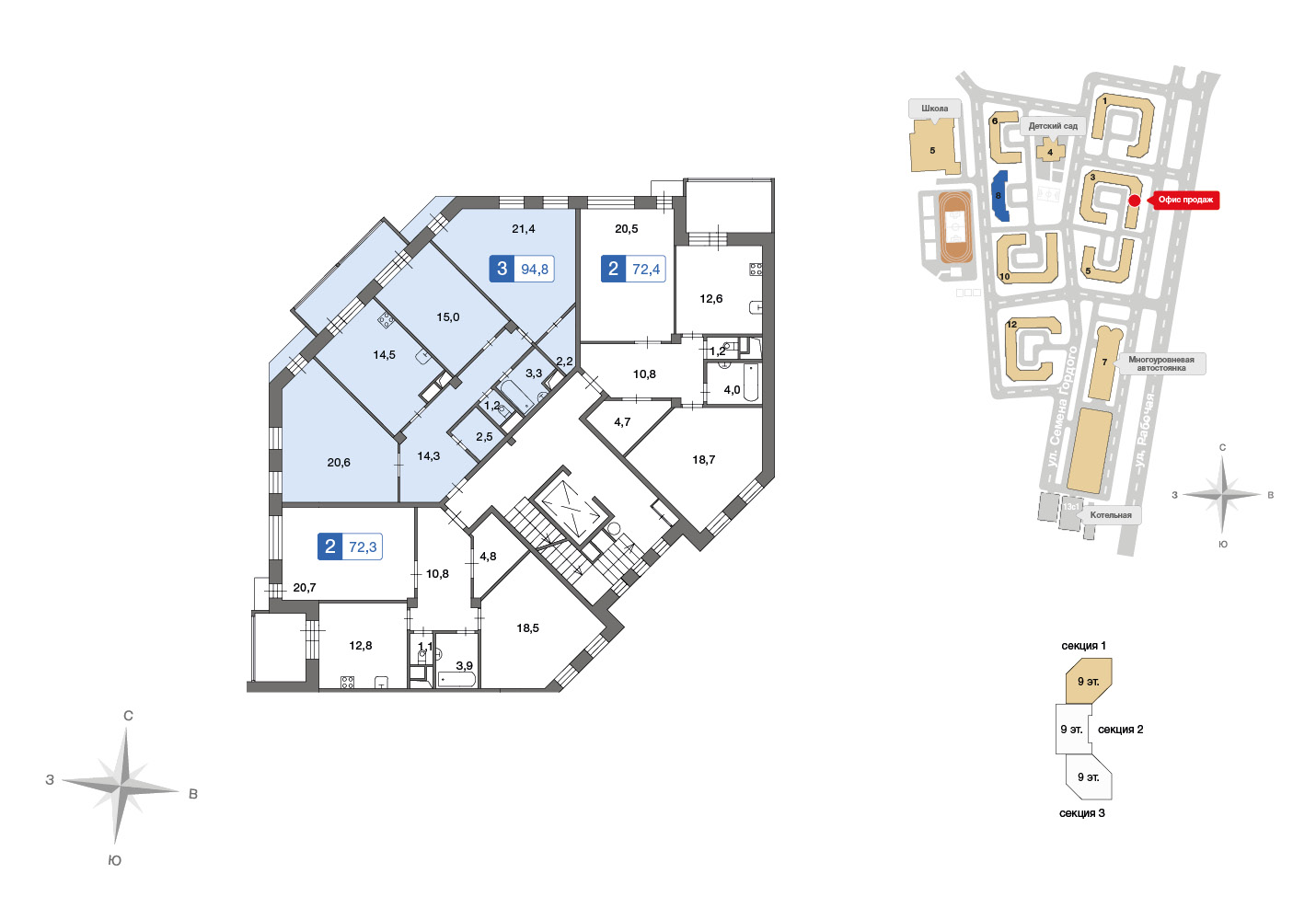
Трехкомнатные квартиры в ЖК «Ново-Никольское» (АГРОСТРОЙ)
Детальная информация о ЖК «Ново-Никольское» (АГРОСТРОЙ)
Жилой комплекс «Ново-Никольское» расположился неподалеку от деревни Ивановское в Троицком округе Москвы. Он представляет собой десятки жилых зданий высотностью от 3 до 9 уровней. Все они относятся к классу "комфорт". На выбор покупателям предложены различные коттеджи, дуплексы, таунхаусы, а также обычные жилые многоквартирные дома. Каждое сооружение имеет в себе все необходимые инженерные коммуникации. Удобство автовладельцев здесь обеспечивается наличием продуманной системы наземного паркинга, как открытого, так и закрытого, который включает в себя оптимальное количеством машиномест, позволяющее с комфортом разместить весь транспорт жителей комплекса и их гостей. Высокому уровню безопасности способствует надежно огражденная территория от других объектов, а также строгая пропуская система со шлагбаумом. Помимо этого у каждого собственника есть дополнительная возможность установить охранную систему, подключенную к специальному пульту. Компания, являющаяся застройщиком ЖК «Ново-Никольское», начала свою профессиональную деятельность 15 лет назад. Она осуществляет свою деятельность не только на территории России, но и в ближайшем зарубежье. Опыт этой организации содержит строительство не только жилых, но и спортивных, медицинских, торговых объектов. Строгое выполнение всех своих обязательств делает ее надежным застройщиком и партнером. Территория ЖК «Ново-Николаевский» располагает несколькими детскими садами, общеобразовательными школами, рассчитанными на достаточное количество человек. Спортивные площадки, различные магазины, прогулочные зоны - данный комплекс включает все самое необходимое для комфортной жизни.


